Cosy Corner
Salle polyvalente à Paris 4ème (75004)
Cosy Corner
Salle polyvalente à Paris 4ème (75004)
Bienvenue au Cosy Corner, le lieu de réception idéal pour tous vos événements spéciaux à Paris. Niché au cœur du 4ème arrondissement, notre espace se distingue par son atmosphère chaleureuse et conviviale, parfaite pour créer des moments inoubliables. Que vous soyez en quête d'un cadre intime pour une célébration familiale ou d'un espace professionnel pour vos projets, le Cosy Corner est l'endroit idéal pour répondre à vos besoins.
Avec une superficie totale de 160 m², notre espace de réception est à la fois spacieux et modulable. Conçu pour accueillir jusqu'à 40 personnes assises ou 80 personnes debout, il s'adapte aussi bien aux événements intimes qu'aux rassemblements plus importants. Que ce soit pour un anniversaire, un mariage, une réception familiale, ou même un tournage de film, le Cosy Corner vous offre une configuration parfaite pour toutes vos occasions.
Le Cosy Corner est fier d'accueillir une grande variété d'événements, allant des cocktails familiaux aux conférences d'entreprise, en passant par des réunions et autres rassemblements professionnels ou personnels. Notre espace flexible peut être personnalisé selon vos besoins, afin de correspondre parfaitement à vos attentes et à l'ambiance que vous souhaitez créer.
Emplacement idéal, service sur mesure, et accessibilité sont autant d'atouts qui font du Cosy Corner une référence dans l'organisation d'événements à Paris. Notre emplacement central permet à vos invités, qu'ils soient résidents locaux ou visiteurs de passage, d'accéder facilement à notre adresse. De plus, nous proposons des solutions pratiques telles que des installations de parking et d'hébergement adaptées, pour rendre votre expérience aussi fluide et agréable que possible.
Privatisation de l'espace pour vos événements
Privatiser le Cosy Corner, c'est choisir un lieu authentique où vos événements seront empreints d'une touche personnelle et d'un cadre unique. Que vous souhaitiez organiser un événement privé comme un anniversaire ou un mariage, ou un événement professionnel comme une réunion, un séminaire ou une réception d'entreprise, notre espace est entièrement modulable pour répondre à vos besoins. Grâce à son ambiance chaleureuse et son design accueillant, chaque espace peut être aménagé pour créer l'expérience sur mesure que vous désirez.
La privatisation du Cosy Corner donne accès à un espace équipé et confortable, dans un environnement élégant et contemporain, où vos invités se sentiront comme chez eux. Que ce soit pour une ambiance festive ou professionnelle, nous vous proposons un cadre qui laissera un souvenir mémorable à vos convives.
Notre équipe est à votre disposition pour vous accompagner dans la préparation de votre événement. De la réservation de l'espace à l'aménagement de la salle, en passant par les services complémentaires adaptés, nous veillons à ce que chaque détail soit parfaitement exécuté.
Contactez-nous dès aujourd'hui pour réserver votre date et découvrir tout ce que le Cosy Corner peut vous offrir. Nous serions ravis de faire de votre prochain événement une expérience inoubliable et de vous accueillir dans notre espace unique. Que ce soit pour une célébration privée ou une rencontre professionnelle, le Cosy Corner est prêt à devenir le berceau de vos moments exceptionnels.
Événements dansants :
Ce lieu n'accepte pas les événements dansants.
Ce lieu est idéal pour les événements suivants :
Les points forts
Hyper Central
Silencieux
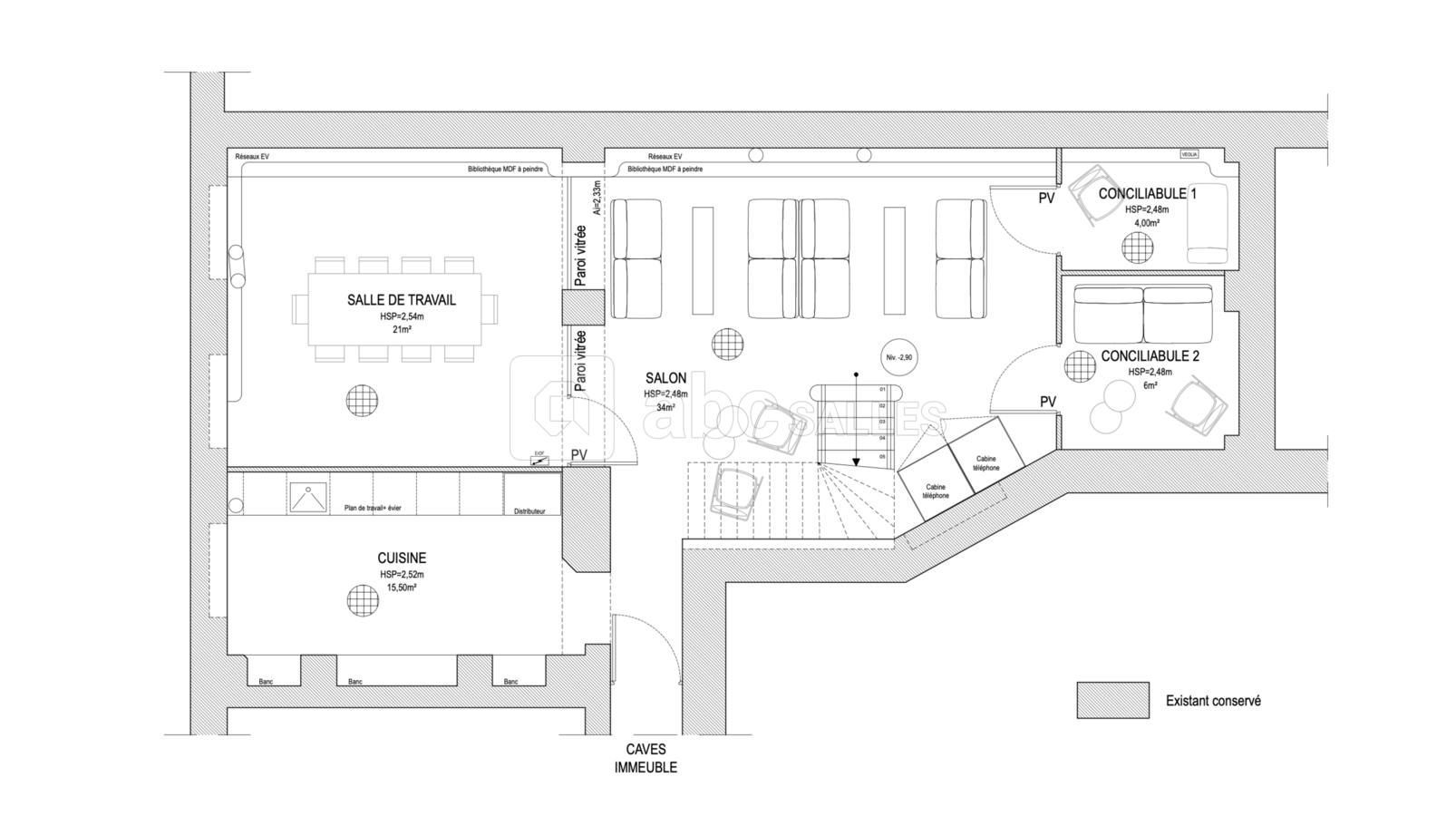
Espaces (4)
Salle
80 personnes
Voir les détails
Salle Kill Bill
25m² - 16 personnes
Voir les détails
Salle Pretty Woman
10 personnes
Voir les détails
Salle Mamma Mia
10m² - 8 personnes
Voir les détails
Capacités des espaces
| Espace | Debout | Assis | ||||||
|---|---|---|---|---|---|---|---|---|
Salle | 80 | 80 | 80 | 80 | 80 | 80 | 80 | 80 |
Salle Kill Bill | 0 | 16 | 16 | 16 | - | 16 | - | - |
Salle Pretty Woman | 0 | 10 | - | 10 | - | - | - | - |
Salle Mamma Mia | 0 | 8 | 6 | 6 | 8 | 6 | 7 | - |
Équipements
Tarifs
Formules
Demi journée d'étude
De 1 à 16 participants
1 salle de réunion pour la demi-journée + 1 collation + 1 déjeuner
Dès 42 €
Journée d'étude
De 1 à 16 participants
1 salle de réunion pour la journée + 2 collations + 1 déjeuner
Dès 51 €
Location salles vides
Salle 80 personnes | Tarif sur devis |
Salle Kill Bill 25m² - 16 personnes | Dès 35 € |
Salle Pretty Woman 10 personnes | Dès 48 € |
Salle Mamma Mia 10m² - 8 personnes | Dès 42 € |
Restauration
Hébergement
L'établissement ne propose pas d'hébergement sur place.
Disponibilités du lieu Cosy Corner
Les points forts
Hyper Central
Silencieux
Demandez votre devis
Accès au lieu Cosy Corner
8 rue Saint-Martin
75004 Paris 4ème
Accès en transports publics
- Métro Arrêt Châtelet - Lignes 1, 4, 7, 11, 1
- Métro Arrêt Hôtel de Ville - 1, 11
- RER Arrêt Châtelet-les-Halles A, B, D
Parking
Pas de parking sur place
- Saemes Parking Rivoli-Sébastopol, 5 Rue Pernelle, 75004 paris
- Saemes Parking Hôtel de Ville, 6 Quai de Gesvres, 75004 paris
- Parking Indigo Paris Lutèce, Bd du Palais, 75004 paris
Parking à proximité
-5 min. à pied
Plus d'informations sur le lieu Cosy Corner
Contact : Service Conciergerie
Langues : Anglais - Français
Questions fréquentes (FAQ) sur le lieu Cosy Corner
Lieux similaires au lieu Cosy Corner

Péniche Sena
Péniche à Paris 4ème (Paris)
L'Annexe
Restaurant à Paris 4ème (Paris)
HD Diner Bastille
Restaurant à Paris 4ème (Paris)
Ei Puente Ile Saint-Louis
Lieu atypique à Paris 4ème (Paris)
Le Paris Clandestin
Lieu atypique à Paris 4ème (Paris)
Vinosfera
Cave voûtée à Paris 4ème (Paris)Recherches à proximité
Paris 4ème en bref
La 4ème arrondissement court de la place du Châtelet à la place de la Bastille, et il inclut la charmante petite île Saint-Louis, ainsi que l’île de la Cité qui abrite la célèbre cathédrale de Notre-Dame de Paris. Il compte environ 29 000 habitants. Dans le 4ème, vous trouverez l’Hôtel de Ville, qui est le siège de la mairie de Paris. Vous...
Photos du lieu du lieu Cosy Corner
Plus de photos